舒适与安全视角下的养护院室内设计细节研究—— 以眉山市老年养护院仁寿分院为例(2)
时间:2026-04-13 作者:HKAOHUA 浏览:
根据《舒适与安全视角下的养护院室内设计细节研究—— 以眉山市老年养护院仁寿分院为例(1)》,我们对眉山市老年养护院仁寿分院的整体设计以及细节部分有了一个基本的了解,接下来我们继续了解材质亮点及设计部分其他的精妙之处。
The project of Renshou Branch of Meishan Senior Nursing Home is based on the actual needs of the elderly with different physical conditions. Through scientific layout planning, meticulous safety protection design and comfortable living environment creation, it has realized the design concept of "Safety First, Comfort Oriented".
The project's practices in optimizing floor plan layout, adjusting spatial functions and refining aging-friendly details provide referable experience for the interior design of nursing homes. In the future, the interior design of nursing homes should continue to focus on aging-friendly needs, constantly explore design patterns featuring flexible transformation and sustainable development, convey warmth and care through details, and effectively safeguard the well-being of the elderly in their later years.
Episode Ⅲ
安全防护精细化设计
设计目标:构建“全场景、无死角”的安全防护体系,针对老年人易摔倒、易磕碰、应急响应需求高等特点,从材质、结构、设施三个层面消除安全隐患,保障老人日常生活安全。
一、材质安全
公共区域地面安全:地面大面积采用防滑、平整、耐磨且具有缓冲力的PVC地胶,减少摔倒后的二次伤害;消除室内地面高差,便于通行。

PVC地胶材料展示

居室至卫生间门槛石优化
二、防撞设计
公共区域墙面板材阳角采用倒弧处理,居室内墙面材质为无机涂料,所有阳角设置PVC抗菌防撞条,所有家具进行圆角处理,最大限度降低老人磕碰受伤风险。考虑到老年人视物不清、抓握力较弱,门锁也更换为易抓握的U型杠杆式门锁。尽量减少尖锐的突起物,避免老人意外撞伤。

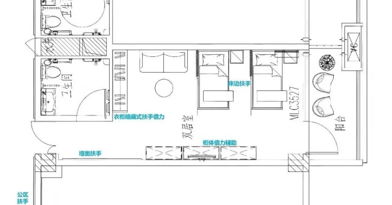
三、扶手设计
老人通行区域的墙面配备双层易抓握安全扶手,低层扶手安装高度宜为650mm,高层扶手安装高度宜为850mm,扶手表面或向下延伸,延伸长度不应小于 100mm,防止钩住衣物。在进入居室内以后,老年人距离沙发或床还有一段需要自己行走的距离,根据老人的行动路线,居室内部增设单侧扶手,确保行走途中可随时抓握,提升行走安全感。


居室扶手

公区扶手
居室内床边配置护栏与助力抓杆,可以有效辅助老年人起身、上下床,同时避免翻身坠床,保障老人日常活动与睡眠安全。

床边扶手
四、卫生间设计
居室卫生间设计重点关注老年人如厕下蹲与起身、淋浴转身、弯腰取物等高频场景,充分预判因体位突变、地面湿滑引发的站立不稳、身体倾倒等安全隐患。
淋浴凳可以使得老人在淋浴时可以更轻松及安全,但淋浴凳的安装需注意与墙面固定的稳定性,避免在使用时脱落对老人造成伤害。
马桶作为卫生间使用频率较高的设施,其高度设计直接影响老年人使用体验。据实际调研数据,普通马桶的高度通常在380mm–430mm区间。若将马桶高度适当提升至500mm,则能更贴合老年人的肢体活动幅度,有效降低起身时的腿部承重压力。

Episode Ⅳ
结语
眉山市老年养护院仁寿分院项目以不同身体状况老人的实际需求为出发点,通过科学的布局规划、细致的安全防护设计与舒适的居住环境营造,实现了 “安全至上、舒适为本” 的设计理念。
项目在平面布局优化、空间功能调整、适老化细节打磨等方面的实践,为养老院室内设计提供了可借鉴的经验。未来,养老院室内设计应持续聚焦适老化需求,不断探索灵活转换、可持续发展的设计模式,用细节传递温暖与关怀,切实守护老年人的晚年幸福感。
参考文献:
[1] 眉山市人民政府.眉山市 “一老一小”整体解决方案 [Z]. 2022.
[2] 中华人民共和国国家统计局.第七次全国人口普查主要数据公报 [Z]. 2021.
[3] 民政部,住房和城乡建设部.养老机构设施设备基本配置规范(MZ/T 032-2012)[S]. 2012.
[4] 住房和城乡建设部.城镇老年人设施规划规范(GB 50437-2007)[S]. 2007.
[5]《老年人照料设施建筑设计标准》(JGJ 450—2018)
[6] 全国老龄工作委员会办公室.老年人建筑设计规范条文说明 [M]. 北京:中国建筑工业出版社,2016.
[7]住房和城乡建设部科技与产业化发展中心.适老化改造技术指南 [Z]. 2020.
[8]张彤.养老院室内适老化设计策略研究 [J]. 建筑学报,2020.
[9] 李明,王芳.失能失智老人养护机构空间设计优化——基于照护效率与安全防护的双重考量 [J]. 华中建筑,2021.
[10] 陈静.老龄化背景下养老机构室内色彩设计与空间辨识度研究 [J]. 装饰,2019, 312 (7): 136-137.
[11] 刘向华.适老化室内设计中的安全细节与人性化表达 [M]. 上海:同济大学出版社,2022.
[12] 王健,李娜.养老机构公共空间布局优化与照护模式适配性研究 [J]. 新建筑,2023.
编审丨品牌管理部、澳华研究院、集团办
素材丨医而饰界 徐良慧
往期干货:
澳华案例 | 国家级口腔医学中心的“解题之道”:上海九院东部院区的“破界”升级之路
澳华喜讯 | 香港澳华成功中标巴基斯坦真纳国际医学中心(JMC)建筑方案设计项目
澳跃新程·竞逐光华|2025香港澳华第十三届篮球对抗赛圆满结束
破局老城改造挑战,川北医学院附属医院妇女儿童中心实现「零停诊」升级
看見insight——香港澳華2025年“看現象、見本質、行合一”主題思想建設大會圓滿召開
医院文化丨受邀出席常州新北区卫健局专题讲座,赋能基层医疗品牌文化
医疗工艺咨询引领复杂医疗建筑系统性建设——中山大学附属第五医院珠澳转化医学中心及珠澳转化医学研究院建设项目
澳华动态 | 喜讯•集团荣获2025年CHCC中国医院建设奖多项荣誉