舒适与安全视角下的养护院室内设计细节研究—— 以眉山市老年养护院仁寿分院为例(1)
时间:2026-04-13 作者:HKAOHUA 浏览:
Renshou Branch of Meishan Senior Nursing Home is situated in the core urban area of Renshou County, Meishan. It enjoys convenient access to surrounding medical resources, with a distance of 1.5 km to Renshou County Hospital of Traditional Chinese Medicine and 1.7 km to the Community Health Service Center, enabling a rapid emergency response mechanism in conjunction with neighboring medical facilities. The nursing home consists of four multi-storey buildings and one single-storey building. In accordance with the original functional design of the buildings, Building 1 serves as operational and service premises, Buildings 2 and 3 as living quarters, and Building 4 as administrative and reception facilities.
Based on the functional uses of various spaces, including residential rooms, public activity areas, rehabilitation zones, dining halls, nurse stations, toilets and assisted bathing rooms in each building, this project focuses on aging-friendly needs to carry out work such as layout optimization, safety protection design and comfort experience improvement.
眉山市老年养护院仁寿分院位于眉山市仁寿县临近城区核心区域,项目周边医疗资源便捷可达,距仁寿县中医院1.5km、社区卫生服务中心1.7km,可与周边医疗资源快速形成应急联动机制。该养护院由4栋多层建筑及1单层建筑构成。其中根据原有建筑设计使用功能,1号楼为运营服务用房,2号楼、3号楼为生活区用房,4号楼为行政接待用房。
本次通过对不同空间的使用功能,包括各楼栋的居住用房、公共活动区域、康复区、餐厅、护士站、卫生间、助浴间等,重点围绕适老化需求,开展平面布局优化、安全防护设计、舒适体验提升等工作。

Episode Ⅰ
空间布局系统性优化
(基于照护效率与需求优先级)
一、布局优化逻辑
设计以“功能齐全,安全便捷、照护高效”为核心,通过合理划分功能分区,实现不同照护等级老人的分类管理。同时强化公共空间与居住空间的关联性,缩短服务响应距离,提升照护效率与老人活动便利性。
二、布局优化思路
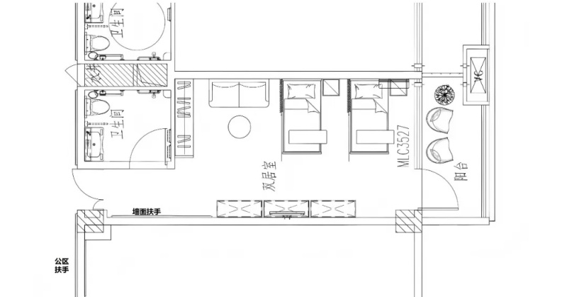
(一)2号楼生活区-助浴间
原建筑无专属助浴间,仅靠居室中简易淋浴区无法满足行动不便老人(如肢体退化、轮椅使用者)洗浴需求,影响卫生与舒适感。
本次优化首先考虑将左侧送餐电梯开门方向调整至公共过道(保留送餐功能),整合释放空间与周边闲置区域扩容,改造成面积≥6㎡的“老人洗浴+护理协助”的专属助浴间,填补功能空白,提升洗浴安全与舒适感。

(二)2号楼生活区-餐厅
为解决改造前餐厅位于通道角落、护士站难以兼顾就餐老人安全的问题,将餐厅与房间位置进行置换。优化后打开了餐厅、门厅及电梯厅的空间连接,视觉更开阔,便于护士站实时管控餐厅情况(实现无死角观察),同时缩短了尽端房间老人的行动距离,提升了通行效率。

优化前

优化后
(三)2号楼生活区-公共无障碍卫生间
减少原有公共卫生间数量,扩大单个卫生隔间面积至≥1.8×1.5m以增强空间感与舒适度;将笨重的平开门更换为净宽≥0.9m 的电动平移门,既方便老人进出,也降低门体开启难度。

(四)2号楼生活区-娱乐、康复活动空间
同时在2号楼、3号楼均设置有老人活动娱乐区域,康复区,为老人提供康复训练,提升自理能力。

康复区效果图

活动区效果图
Episode Ⅱ
舒适体验适老化设计
设计目标:以“适配生理特征、强化情感归属”为核心,通过空间细节设计提升老年人居住舒适度,减少环境适应成本,增强“家”的认同感。
一、入户设计
所有居室入户门尺寸保证净空满足大于900mm,保证轮椅通行,且门均结合柱体设置为内退式外开门,减少对走道的通行影响。在门口引入寻路装置,降低寻路难度,更能通过专属物件强化家的归属感,传递人文关怀。

寻路设置示意效果图
二、居室设计
居室布局前先与老人充分沟通,精准适配其日常生活习惯,进行空间分配与个性化布置。支持老人带入私人物并可自由摆放,强化居住的专属感与家的归属感。
考虑老年人手部力量减弱、弯腰踮脚困难等生理特点,采用推拉式柜门便于开启,门板可嵌入隐形扶手,方便老人开关门时借力支撑。 在衣柜分隔上应考虑便于老年人取放,同时考虑乘坐轮椅的老年人的操作高度,储物隔板可分为上中下三层,上层放置换季物品采用拉杆式或电动升降拉篮式,老人无需用力,轻轻下拉就可以取用上层物品;中层高度可以控制在800~1000mm,刚好适配老人站立时手臂的活动区域,无需弯腰或抬手。衣柜内部需安装感应灯带,开门或拉开抽屉时自动亮起,解决光线不足老人找衣服困难的问题。有了更多的储存空间,老年人的隐私也得以保障。

居室平面图

居室效果图

衣柜效果图

2号楼、3号楼居室实景图
三、阳台设计
所有居室均设置阳台,充分考虑老年人洗涤、晾晒、晒太阳、养护绿植等核心需求,提升居住舒适度,享受晚年时光。

阳台效果图
四、色彩搭配
养老院室内以米色、浅灰色、木纹等温暖柔和的色调为主,营造温馨居住氛围;2号楼居住区增加绿色、紫色、黄色等鲜艳色彩,结合标识系统区分不同照护等级,帮助失能、失智老人增强空间辨识度。

大厅效果图

大厅实景图

用餐、活动区效果图

用餐、活动区实景图
五、家具选择
老年人普遍存在肌肉力量减弱、关节灵活性下降、平衡能力欠佳等情况,设计重点围绕 “起身难、易摔倒、久坐累” 三大核心痛点展开。公共区域及户内桌椅,优先选用倒角圆润的实木材质,手感温润不冰手,避免磕碰受伤。配备软垫的座椅能缓冲重力冲击,减轻腰部负担。座椅需搭配高度适中的靠背与扶手,既保障腰部支撑,又方便借力起身,提升使用安全性与舒适度。
茶几的高度宜500~550mm,方便老人扶着站起来。边几的高度宜为与沙发、座椅的高度一致450~550mm,方便拿取物品。 如果是需轮椅辅助的老年人,在沙发旁边需预留放置轮椅的尺寸。


六、灯具照明
结合老年人视力退化的生理特点(如对比度敏感度下降、怕眩光、视物模糊),养护院的灯光设计应优先采用暖色光源,兼顾视觉温暖感与视力适配性。优选色温 3000K-3500K的无频闪LED灯,避免3000K以下过暖黄光(易显昏暗,加重视物模糊),既保留温暖感,又能保证基础视物清晰度。
同时按区域差异化设置照度,采用“主灯 + 辅助灯”组合式照明,主灯选用漫射型吸顶灯减少直射眩光,走廊与过道搭配低高度防眩光地脚灯或嵌入式灯带,床头、座椅旁设置可调节亮度的局部灯具,且在区域过渡处实现灯光亮度渐变,规避明暗突变带来的眩晕风险。
灯光开关选用大按钮、高对比度设计(如白色按钮 + 黑色标识),安装高度1.1-1.3m(方便坐姿、站姿操作),部分区域可搭配语音控制或遥控开关。在入户门处需要设置一键式控制的开关,老人进出时开关灯更加便捷。
